Skip To Content

21 Industrial Way

DENVER, PA 17517
  • $1
  • STATUS: Active
  • ON SITE: 134 Days
  • ID#: PALA2072540
UPDATED: 67 min ago
$1
  • 0
    BEDS
  • 21.48
    ACRES
  • 0
    BATHS
  • 0
    1/2 BATHS
Type:
Commercial-Lease
Built:
2026
County:

School Ratings & Info

School District:

Description

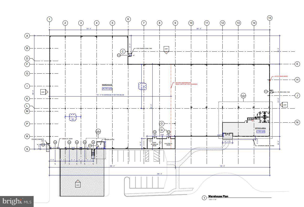
Opportunity to lease a to-be-built 48,500 SF warehouse/distribution building in Denver, PA, just 1.6 miles from I-76 & Route 222. Zoned Light Industrial (I-1) with a granted exception for Regional Planned Center. Ideal for warehouse, light industrial, and manufacturing uses. The building offers 30 clear ceiling height, full ESFR sprinkler coverage. Power includes 400 amps, 3-phase electric. The proposed 1,750 SF office area includes two single-use restrooms, a breakroom with basic millwork, acoustic ceiling tiles, finished drywall & central heating and cooling. The warehouse includes a 10 x 11 drivers office with HVAC (mini-split), and the warehouse space is heated by gas-fired hung units. Loading features include 3 dock doors with levelers (expandable to 6 total) and 1 drive-in door. 75 on-site parking spaces. Exterior finishes include split-face block up to 8 with metal siding above and aluminum storefront entry. Rent will reflect final build cost to suit Tenant requirements.



©2025 Bright MLS, All Rights Reserved. IDX information is provided exclusively for consumers' personal, non-commercial use and may not be used for any purpose other than to identify prospective properties consumers may be interested in purchasing. Some properties which appear for sale may no longer be available because they are for instance, under contract, sold, or are no longer being offered for sale. Information is deemed reliable but is not guaranteed accurate by the MLS or The Craig Hartranft Team, Berkshire Hathaway Homesale Realty. Some real estate firms do not participate in IDX and their listings do not appear on this website. Some properties listed with participating firms do not appear on this website at the request of the seller. Data last updated: 2025-11-14T20:54:00.523.
www.lancasterhome.com/homes/165500663
Print Image

21 Industrial Way DENVER, PA 17517

  • Price: $1
  • Status: Active
  • On Site: 134 Days
  • Updated: 67 min ago
  • ID#: PALA2072540
0
Beds
0
Baths
0
½ Baths
21.48
Acres
2026
Built
Neighborhood:
East Cocalico Twp (10508)
County:
Lancaster
Area:
East Cocalico Twp (10508)
School District:
Cocalico
Property Description
Opportunity to lease a to-be-built 48,500 SF warehouse/distribution building in Denver, PA, just 1.6 miles from I-76 & Route 222. Zoned Light Industrial (I-1) with a granted exception for Regional Planned Center. Ideal for warehouse, light industrial, and manufacturing uses. The building offers 30 clear ceiling height, full ESFR sprinkler coverage. Power includes 400 amps, 3-phase electric. The proposed 1,750 SF office area includes two single-use restrooms, a breakroom with basic millwork, acoustic ceiling tiles, finished drywall & central heating and cooling. The warehouse includes a 10 x 11 drivers office with HVAC (mini-split), and the warehouse space is heated by gas-fired hung units. Loading features include 3 dock doors with levelers (expandable to 6 total) and 1 drive-in door. 75 on-site parking spaces. Exterior finishes include split-face block up to 8 with metal siding above and aluminum storefront entry. Rent will reflect final build cost to suit Tenant requirements.
Exterior Features

Construction Materials Metal Siding Garage YN No Parking Types Parking Lot Property Condition Excellent Water Access YN No Water View YN No Waterfront YN No

Interior Features

Building Area Total 0.00 Cooling Central A/C Heating Forced Air Heating YN Yes

Property Features

Accessibility Features Level Entry - Main Central Air YN Yes Construction Completed YN No Current Use Industrial Heating Fuel Natural Gas Hot Water Other Municipality EAST COCALICO TWP Navigable Water YN N New Construction YN Yes Number Of Units Total 1 Original MLSNumber 803983191190 Ownership Interest Other Property Sub Type Industrial Sewer Public Sewer Vacation Rental YN No Water Source Public Zoning REGIONAL PLANNED CENTER Zoning Description (Light Industrial)

Listing courtesy of PPM Real Estate, Inc.: .


©2025 Bright MLS, All Rights Reserved. IDX information is provided exclusively for consumers' personal, non-commercial use and may not be used for any purpose other than to identify prospective properties consumers may be interested in purchasing. Some properties which appear for sale may no longer be available because they are for instance, under contract, sold, or are no longer being offered for sale. Information is deemed reliable but is not guaranteed accurate by the MLS or The Craig Hartranft Team, Berkshire Hathaway Homesale Realty. Some real estate firms do not participate in IDX and their listings do not appear on this website. Some properties listed with participating firms do not appear on this website at the request of the seller. Data last updated: 2025-11-14T20:54:00.523.
 
https://bt-photos.global.ssl.fastly.net/brightmls/1280_boomver_1_803983191190-2.jpg https://bt-photos.global.ssl.fastly.net/brightmls/1280_boomver_1_803983191190-2.jpg https://bt-photos.global.ssl.fastly.net/brightmls/1280_boomver_1_803983191190-2.jpg
Logo
The Craig Hartranft Team, Berkshire Hathaway Homesale Realty
150 North Pointe Blvd.
Lancaster PA, 17601
<-- Client Provided 11/13/24-- >