Skip To Content

1512 E Caracas Avenue , #700

HERSHEY, PA 17033
  • $20
  • STATUS: Active
  • ON SITE: 28 Days
  • ID#: PADA2050526
UPDATED: 53 min ago
$20
  • 0
    BEDS
  • 1.35
    ACRES
  • 0
    BATHS
  • 0
    1/2 BATHS
Neighborhood:
Type:
Commercial-Lease
Built:
1995
County:

School Information

High School:
School District:

Description

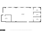
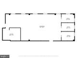
BUILD TO SUIT, GROSS LEASE - This 1635 square foot space located at 1512 E Caracas Avenue is a 2nd floor office space ready to have your customizations. With an open space design, this unit has 3 individual office space suites as well as an in-unit kitchen and dining space. The open layout can be customized with owners approval. This unit offers east access with a same-level ramp entrance, as well as an elevator from the lower level. Owners are willing to finish the space according to the tenants needs depending upon tenant. Reach out for a private tour.



©2025 Bright MLS, All Rights Reserved. IDX information is provided exclusively for consumers' personal, non-commercial use and may not be used for any purpose other than to identify prospective properties consumers may be interested in purchasing. Some properties which appear for sale may no longer be available because they are for instance, under contract, sold, or are no longer being offered for sale. Information is deemed reliable but is not guaranteed accurate by the MLS or The Craig Hartranft Team, Berkshire Hathaway Homesale Realty. Some real estate firms do not participate in IDX and their listings do not appear on this website. Some properties listed with participating firms do not appear on this website at the request of the seller. Data last updated: 2025-11-08T13:56:48.823.
www.lancasterhome.com/homes/168765745
Print Image

1512 E Caracas Avenue , #700 HERSHEY, PA 17033

  • Price: $20
  • Status: Active
  • On Site: 28 Days
  • Updated: 53 min ago
  • ID#: PADA2050526
0
Beds
0
Baths
0
½ Baths
1.35
Acres
1995
Built
Neighborhood:
Derry Twp (14024)
County:
Dauphin
Area:
Derry Twp (14024)
High School:
Hershey High School
School District:
Derry Township
Property Description
BUILD TO SUIT, GROSS LEASE - This 1635 square foot space located at 1512 E Caracas Avenue is a 2nd floor office space ready to have your customizations. With an open space design, this unit has 3 individual office space suites as well as an in-unit kitchen and dining space. The open layout can be customized with owners approval. This unit offers east access with a same-level ramp entrance, as well as an elevator from the lower level. Owners are willing to finish the space according to the tenants needs depending upon tenant. Reach out for a private tour.
Exterior Features

Construction Materials BrickBlock Garage YN No Parking Types Parking Lot Road Responsibility Boro/Township Road Surface Type Black Top View Street Water Access YN No Water View YN No Waterfront YN No

Interior Features

Building Area Total 0.00 Cooling Central A/C Heating Forced Air Heating YN Yes

Property Features

Accessibility Features ElevatorLevel Entry - Main36"+ wide Halls2+ Access Exits Central Air YN Yes Current Use Medical Offices Elevators 1 Heating Fuel Natural Gas Hot Water Natural Gas Municipality DERRY TWP Navigable Water YN N New Construction YN No Original MLSNumber 804234382482 Ownership Interest Other Property Sub Type Office Sewer Public Sewer Vacation Rental YN No Water Source Public Zoning PALMDALE MIXED USE

Listing courtesy of Straub & Associates Real Estate: .


©2025 Bright MLS, All Rights Reserved. IDX information is provided exclusively for consumers' personal, non-commercial use and may not be used for any purpose other than to identify prospective properties consumers may be interested in purchasing. Some properties which appear for sale may no longer be available because they are for instance, under contract, sold, or are no longer being offered for sale. Information is deemed reliable but is not guaranteed accurate by the MLS or The Craig Hartranft Team, Berkshire Hathaway Homesale Realty. Some real estate firms do not participate in IDX and their listings do not appear on this website. Some properties listed with participating firms do not appear on this website at the request of the seller. Data last updated: 2025-11-08T13:56:48.823.
 
https://bt-photos.global.ssl.fastly.net/brightmls/1280_boomver_1_804234382482-2.jpg https://bt-photos.global.ssl.fastly.net/brightmls/1280_boomver_1_804234382482-2.jpg https://bt-photos.global.ssl.fastly.net/brightmls/1280_boomver_1_804234382482-2.jpg
Logo
The Craig Hartranft Team, Berkshire Hathaway Homesale Realty
150 North Pointe Blvd.
Lancaster PA, 17601
<-- Client Provided 11/13/24-- >